詳細介紹
結構形式
鍛鋼閘閥有三種體蓋連接設計結構形式。第一種是體蓋螺栓連接鍛鋼閘閥,按這種連接形式設計的閥門,其閥體與閥蓋用螺栓連接,纏繞式墊片密封,優點是便于維修。第二種體蓋焊接連接鍛鋼閘閥,按這種連接形式設計的閥門,其閥體與閥蓋全焊密封,優點是無外泄漏。第三種是壓力自緊式閥蓋鍛鋼閘閥,按這種連接形式設計的閥門,其閥體與閥蓋用螺蚊連接,內壓自密封環密封,優點是內部壓力越大,其密封性能越好。您可以根據實際情況合理選用我們的閥門。
設計標準與應用規范
結構特征
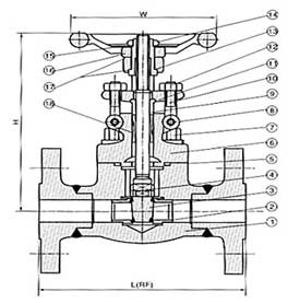
產品尺寸![]() |
溫馨提示:“鍛鋼閘閥”所有文字、數據、圖片均只適用于參考。
如需與實物相吻合的性能參數、結構尺寸參數等詳情請來電來函索取。
電話:021-68103333 傳真:021-51686322
如需與實物相吻合的性能參數、結構尺寸參數等詳情請來電來函索取。
電話:021-68103333 傳真:021-51686322

軟密封蝶閥視頻介紹





掃一掃關注我們