詳細介紹
| 雙偏心半球閥用途 雙偏心半球閥利用偏心閥體,偏心球體和閥座,閥桿作旋轉運動時在共同軌跡自動定心,關閉過程中越關越緊,完全達到良好的密封目的。閥門的球體和閥座完全脫離,消除了密封圈的磨損,克服了傳統球體閥座與球體密封面始終磨損的問題,非金屬彈性材料被嵌入金屬座中,閥座金屬面受到良好的保護。本產品特別適用于鋼鐵業,鋁業,纖維,微小固體顆粒,紙漿,煤灰,石油氣等介質 雙偏心半球閥特點1、其結構采用偏心契緊原理通過傳動機構達到閘緊、調節、關閉的目的,密封副是金屬面環帶硬面接觸密封,雙偏心結構在開啟時閥芯位于藏球室內,流通截面大,且閥門不被沖刷,關閉時閥芯不被沖刷,開啟時閥芯球面沿閥座漸進,有效地切除結垢障礙,實現可靠密封。它對兩相混流易結垢固體析出的混流輸送特別有效2、閥門的半球用雙金屬,母材上堆焊不同的合金,閥座也作相應堆焊經特殊的處理,密封面組合成防腐、耐磨、高強度等各種類型,滿足不同場合需求 3、密封嚴密、輸送有害氣體可達零泄露 4、密封副的閥芯留有補償量、當閥做磨損后,關閉時再轉動少許,任能可靠密封,延長了使用壽命。此外,用戶將壓緊螺母擰掉,調整或更換后閥座仍可用,避免了閥門密封失效后,整臺報廢的弊端 因堆焊不同合金(或組合球)雙金屬密封副的選配可以用于耐磨、耐腐蝕、耐高溫且要求嚴格密封的工況 1、通用閥:規格型號DN40600。適用于污水處理、紙漿、城市采暖供熱等要求嚴緊的場合 2、油化工專用閥:規格DN40600。適用于原油、重油等各類油品、化工行業弱腐蝕、二相混流介質 3、煤氣專用閥:規格DN40600。適用于煤氣、天然氣、液化氣的輸送控制 4、料漿專用閥:規格DN40600。適用于液態、固態兩相混流或液態輸送中化學反應有結晶析出或結垢的工業管道輸送 5、煤粉灰渣專用閥:規格DN40600。適用于電廠、水力除渣或氣態輸送管道的控制 執行標準設計:GB12237-89法蘭連接:GB/T17241.6998、GB/T9115(鋼制) 結構長度:GB12221-89 主要零件材料
性能參數
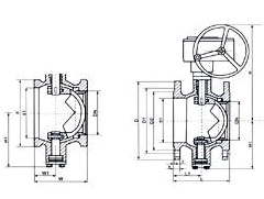
產品尺寸
產品結構![]() | |||||||||||||||||||||||||||||||||||||||||||||||||||||||||||||||||||||||||||||||||||||||||||||||||||||||||||||||||||||||||||||||||||||||||||||||||||||||||||||||||||||||||||||||||||||||||||||||||||||||||||||||||||||||||||||||||||||||||||||||||||||||||||||||||||||||||||||||||||||||||||||||||||||||||||||||||||||||||||||||||||||||||||||||||||||||||||||||||||||||||||||||||||||||||||||||||||||||||||||||||||||||||||||||||||||||||||||||||||||||||||||||||||||||||||||||||||||||||||||||||||||||
溫馨提示:“BQ340蝸輪雙偏心半球閥”所有文字、數據、圖片均只適用于參考。
如需與實物相吻合的性能參數、結構尺寸參數等詳情請來電來函索取。
電話:021-68103333 傳真:021-51686322
如需與實物相吻合的性能參數、結構尺寸參數等詳情請來電來函索取。
電話:021-68103333 傳真:021-51686322

軟密封蝶閥視頻介紹





掃一掃關注我們